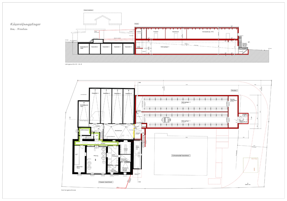
2010 Käsereifungslager

Fassadenplan  Fassadenplan Grundriss  , Untergeschoss mit SchnittGrundriss , Untergeschoss mit Schnittundriss  , Erdgeschoss mit Schnittundriss , Erdgeschoss mit Schnitt