Wollen Sie es genauer wissen?

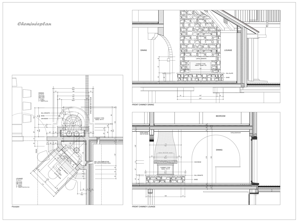
Planunterlagen für Innenausbau. Pläne im kleineren Massstab mit detaillierter Darstellung, Vermassung und Beschriftung.

2004   Infodesk  , Bank2004 Infodesk , Bank2005   Spezial-Betonwand  , Pfettenauflager2005 Spezial-Betonwand , Pfettenauflager2006   Weinkeller  , Villa England2006 Weinkeller , Villa England2006   Cheminées  , Villa England2006 Cheminées , Villa England