FAQ
Feedback
SK-PLUS
Unternehmen
Dienstleistungen
Kundensegment
Referenzen
Downloads
Pläne für den Hochbau
Bestandespläne
Projektpläne
Werkpläne
Detailpläne
Umbaupläne
Projekte Thailand
2009 1- Familienhaus
2013 Wohn und Geschäftshaus
Projekt Guesthouse
Baumassenermittlungen
Die 3D-Welt
2009 1- Familienhaus
mit Einliegerwohnung
1. BG-GR_FA Juli 2011 _ Projektplan
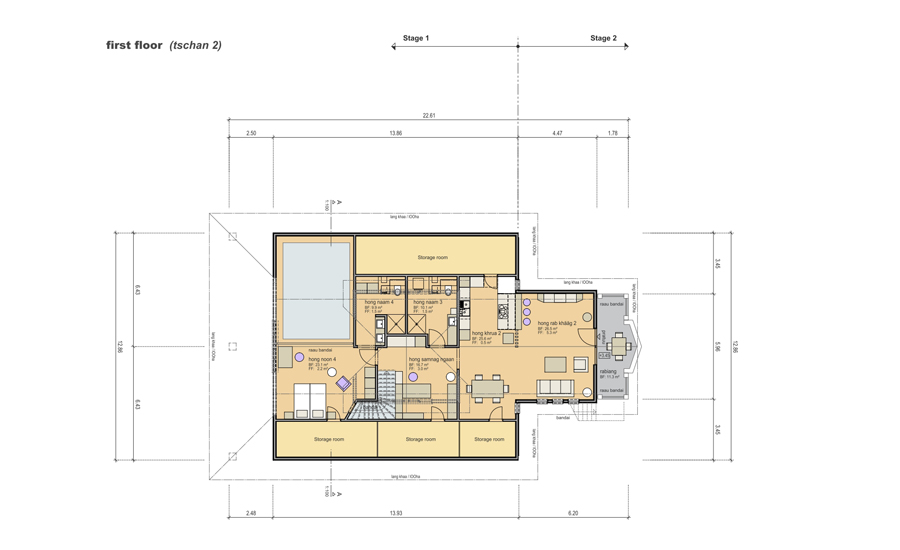
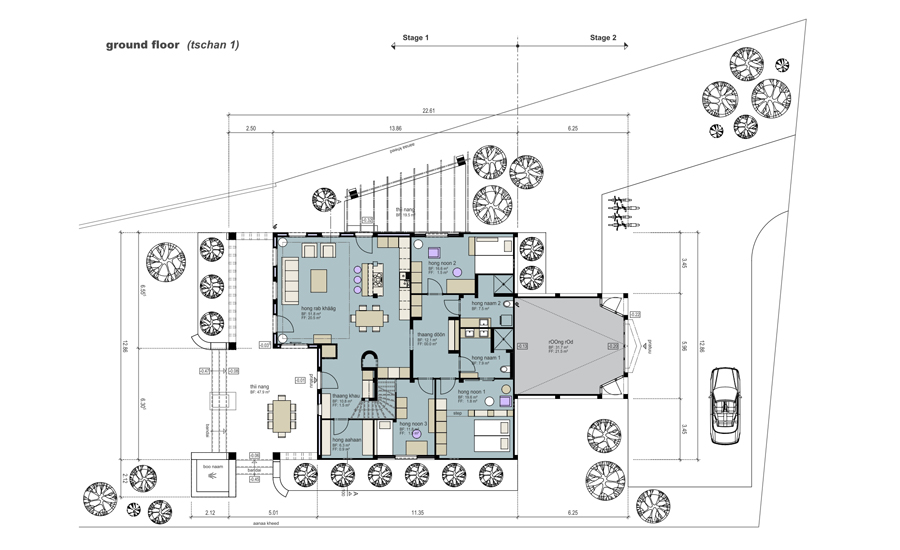
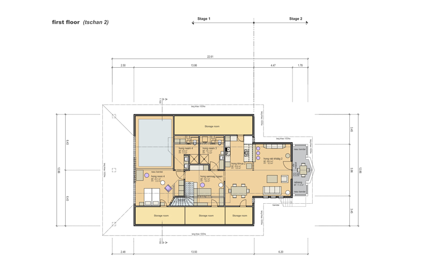
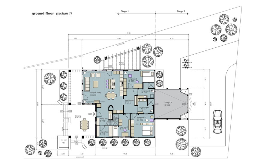
2. BG-GR_FA Juli 2011 _ Erdgeschoss
3. BG-GR_FA Juli 2011 _ Obergeschoss
4. BG-GR_FA Juli 2011 _ Schnitt-Süden
5. BG-GR_FA Juli 2011 _ Ost-West
6. BG-GR_FA Juli 2011 _ Nord-Perspektive